按照法定程序,东莞市麻涌镇新沙港后地块控制性详细规划MC09图则调整方案通过审查,成果通过验收。按照《中华人民共和国城乡规划法》第八条的有关规定,现对调整的相关事项公告如下:
一、规划调整范围
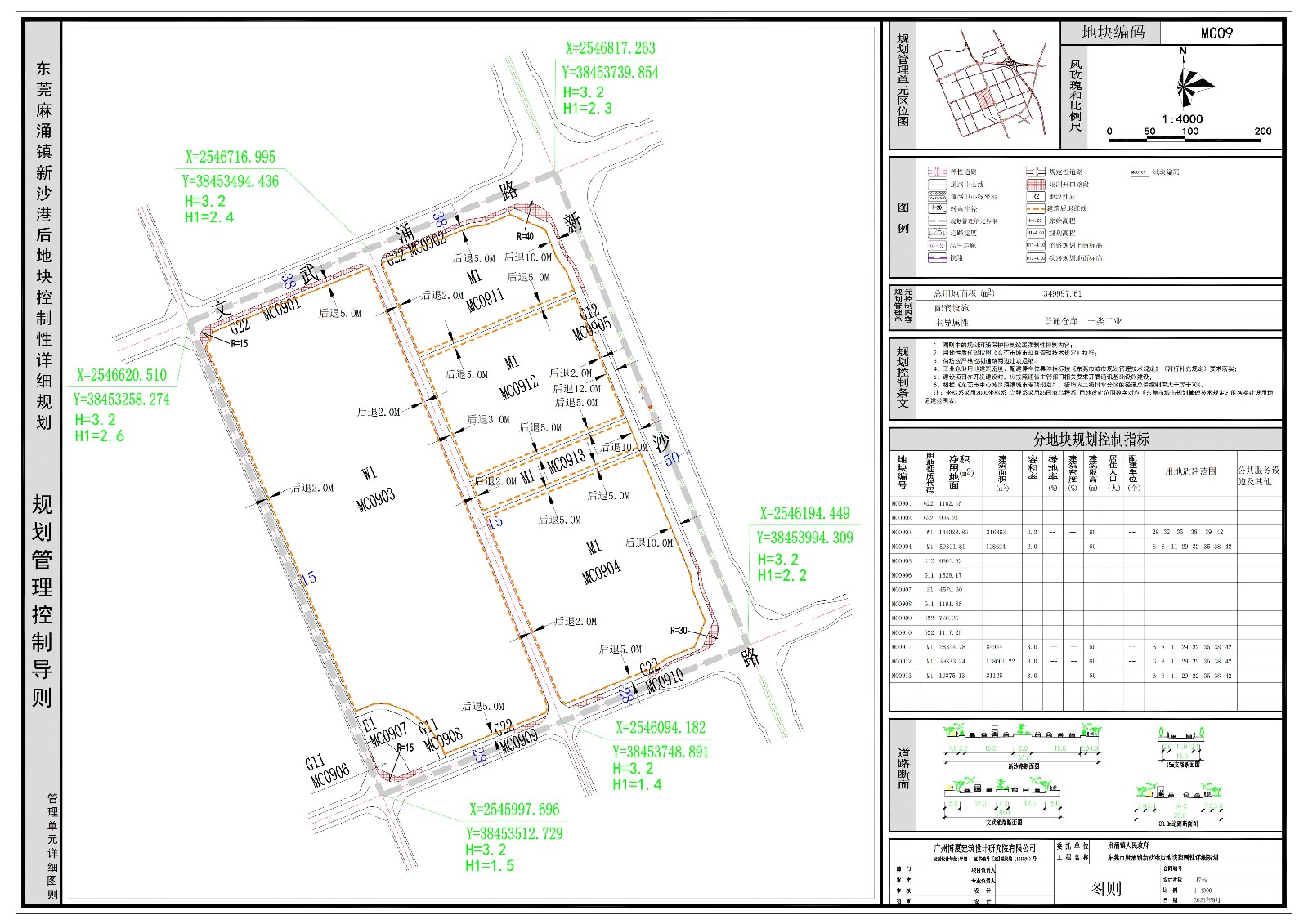
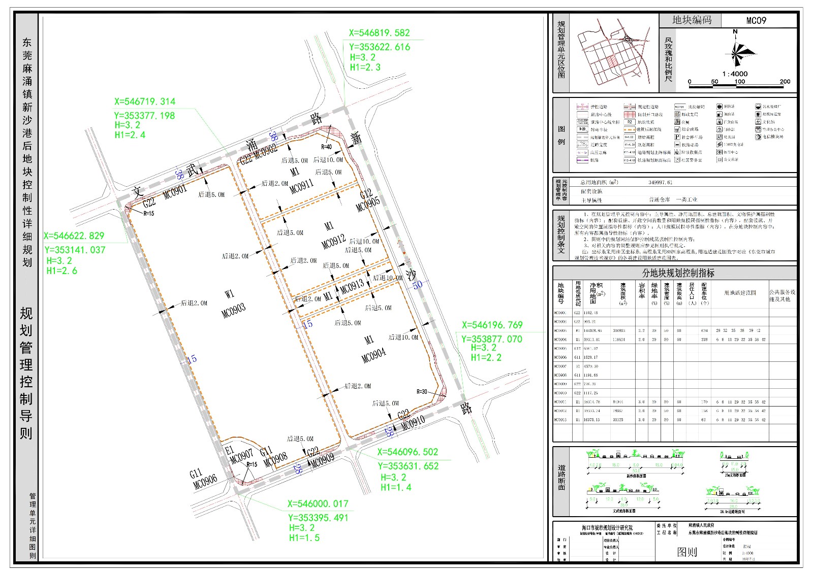
本次调整主要涉及《麻涌镇新沙港后地块控制性详细规划》中的MC09图则MC0912地块,调整地块位于麻涌镇漳澎村新沙工业园,东临广深沿江高速、北临水乡大道、南临麻涌大道、西侧为新沙港工业区,调整范围面积约为39333.74平方米。
二、规划调整内容
本次调整属于控规局部调整类型。
(一)规划指标调整:根据项目开发建设强度与生产工艺流程诉求,将MC0912地块的容积率由2.0调整为3.0。
(二)勘误修正:根据《东莞城市规划管理技术规定》修正机动车禁开口路段以及建筑退让距离。
(三)新增规划控制要点:新增海绵城市和通讯设施建设控制要求。
三、实施时间:自公告之日起。
四、东莞市麻涌镇新沙港后地块控制性详细规划MC09图则调整方案的具体内容,可通过东莞市自然资源局网站(http://land.dg.gov.cn/)和东莞水乡特色发展经济区管理委员会网站(http://dgsx.dg.gov.cn/)查询。
附件:
东莞水乡特色发展经济区管理委员会
2021年11月9日







粤公网安备 44190002000375号